IT timber wagons

IT 241 at Dandenong. July 9 1978
Photo courtesy Geoff Winkler
|
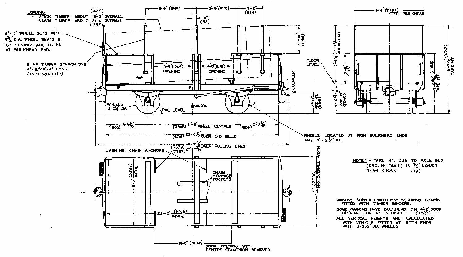
The IT's were converted from I/IA open wagons. Their main traffic was cut timber from the Orbost line to Melbourne. They were rarely seen off the Orbost to Melbourne line. Main Melbourne unloading points were Dandenong, Westall and Graham. An interesting feature of the IT's was that they had bigger leaf springs, journals and wheels at the non handbrake end, this was the end that bore the majority of the load as shown in the photo. Nos 2 - 7 had the bigger springs at the handbrake end, all IT's had a stencil "GY springs this end only" | |||||||||||||||
|
||||||||||||||||

IT 1 at Dandenong May 6 1978

IT's 2 - 7 had the bulkhead end at the handbrake end, all other IT's had the bulkhead at the non handbrake end
IT 6 photo at Tottenham, March 1978

IT 86 at Dandenong. April 23 1978
Photo courtesy Geoff Winkler

IT 125 at Westall Feb. 1978

IT 181 at Dandenong March 1978

IT 196 at Dandenong Feb 1978

IT 250 at Dandenong Feb 1978

IT 264 at Dandenong Feb 1978

IT 273 at Graham, 1978
BELOW: IT 219 end view.


![]() |
![]() |
![]() |
![]() |
|||||
Page last updated